
The MAK Center for Art and Architecture is a think tank for current cultural issues, with focus on the exploration of practical and theoretical ideas in art and architecture. The concept is inspired by the Schindler House with Rudolph M. Schindler’s original intent to blur the threshold between interior and exterior. I am inspired by not only Schindler’s use of materials but also through the ideas of bridging the gap between nature and architecture.

The MAK Center is a contemporary, experimental, and multi-disciplinary center for art and architecture. It is located in Los Angeles and headquartered in the Schindler House by the Austrian-American architect R.M. Schindler.

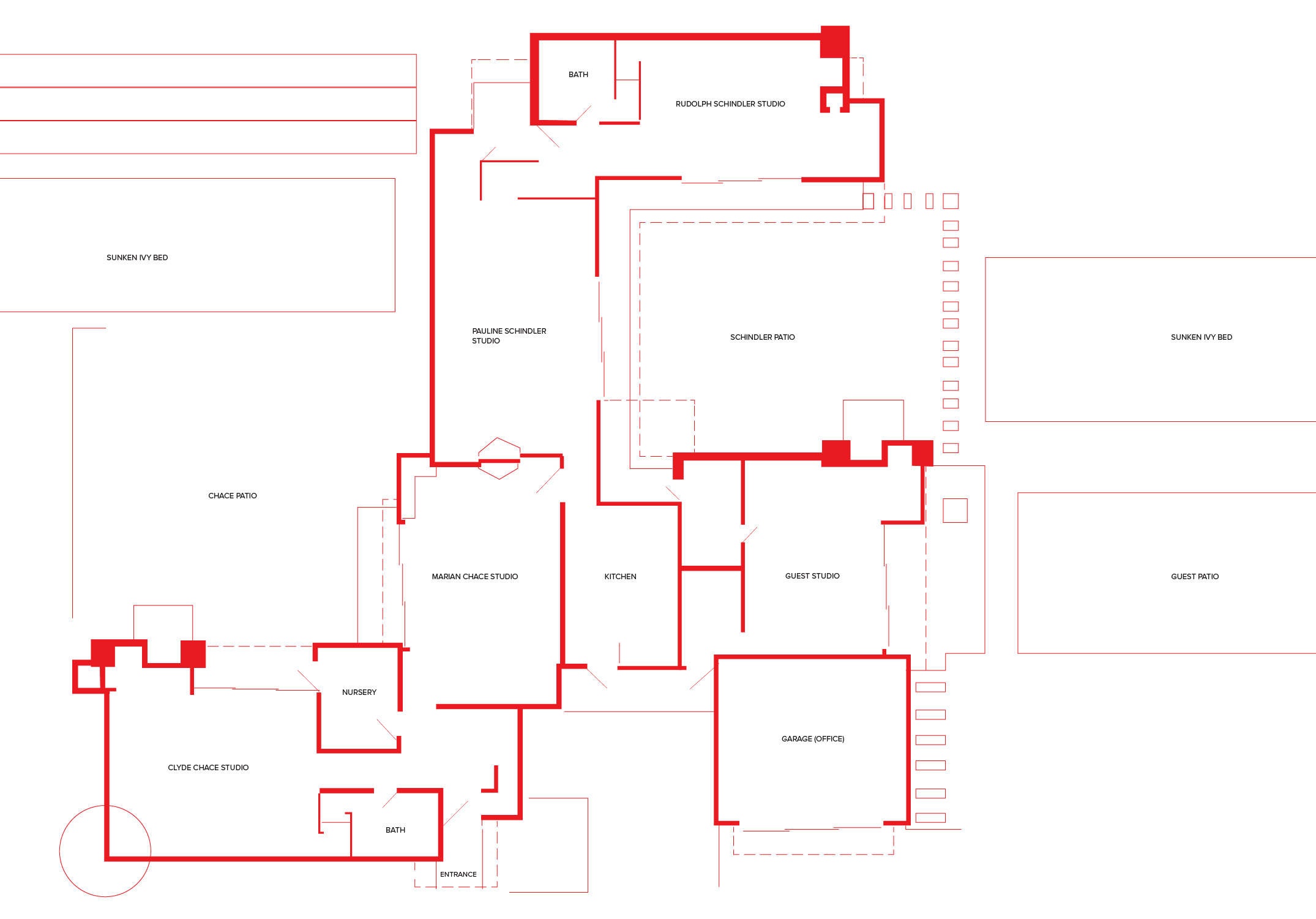
As showcased within the photography, the Schindler House blurs the boundaries between interior and exterior. I have abstracted the floor plan of the Schindler house, through the use of individual lines and composition, to create a typographic system that allows the perception of spaces without boundaries.


The logotype is influenced by architectural blueprints while the open spaces represent a seamless integration into the landscape. The arm and leg of “K” represents us looking inward while the walls of the architecture are formed. The red represents the red wood beams of the Schindler House while the earth tones represent the environment and concrete.


The Schindler House exhibits not only the building itself but also installations, sculptures, and live performances. The perimeter of the architecture is used as a doorway for different aspects and spaces of the MAK Center.

Social media is not only used to promote the architectural space and exhibition but also to provide more information on contemporary art and architecture.
Utilizing the letterforms of the logotype to create spaces, content blocks and images throughout the website.

At the entrance, visitors can pick up a booklet that explains the history and thinking behind Rudolph M. Schindler’s work. The thin to thick elements of the letterform represents the duality of materials in the Schindler House. The use of both man made and natural materials to further emphasize the blur between the exterior and interior environments.

The entrance tickets have a perforated section that allow visitors to transform the mark into a three dimensional shape.

The entrance tickets can also be purchased and scanned through the MAK Center app.


